• Home
  • Recent work
  • Portfolio
  • About
  • Contact
  • Publication
  • Instagram
  • Jobs

© 2018 Mol - studio
All Rights Reserved.

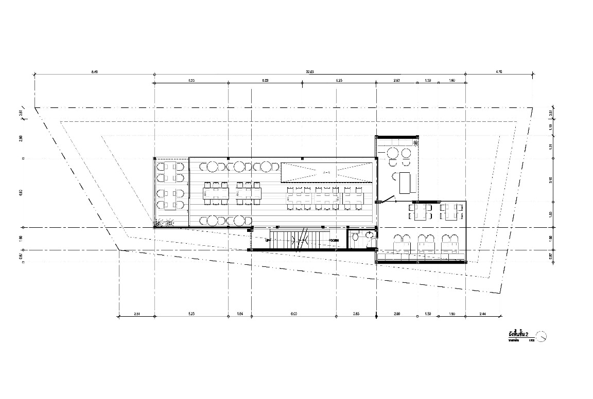
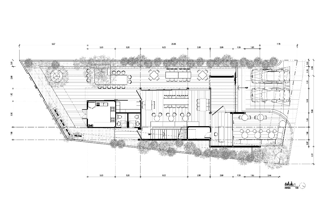
RM03

Previous Next
Previous Project
Next Project

Other Works

TRI RESIDENCE

K TAN HOUSE

AREE05

RED SWAMP PLANTATION & CAFE